一场疫情照出了很多东西,楼市也是一样。
对于普通购房者而言,买房的逻辑恐怕会产生变化,比如将物业权重上升到重头戏,再比如挑户型的理念,也会改变。
疫情终究会过去,地产江湖终究会走回正轨。
那么,作为开发商或者地产人,对于户型,很有必要重新考虑很多东西。
1、户型必须通风
能否通风将会成为人们极端关注的问题,因为在疫情中,所有专家都在强调“通风、通风”。
传统的塔式住宅和一梯多户板式住宅将遇到巨大的市场阻力。

△塔式一梯六户

△板式一梯四户
可以看到,塔式住宅和板式住宅的中户,不仅不能直接通风,反而存在通过交通核交叉污染的风险。
而高层住宅若想解决通风问题,分交通核的设置将会为成主流。

△分交通核户型1

△分交通核户型2
由上图可见,分交通核时,所有户型均可实现自我的南北通风,大大降低在交通核部分发生的空气交叉感染风险。
但是很多城市却很难出现这样的户型,因为《城市管理技术规定》中严格限定了楼长(比如≤60米)或限定了高宽比(比如1:2;1:2.7)。
这些规定再加上日照、容积率等等要求,使得这些城市的住宅只能做成塔式或一梯多户的板式。
衷心希望这些城市能顺应时代的需求,为保障人民的生命、健康,鼓励可通风住宅的建设。
2、卫生间要干湿分离或三分离
两次疫情都出现了楼层上下感染的案例,罪魁祸首就是设计不合理的卫生间。

△卫生间错误案例
上图就是一个典型案例,卫生间地漏设于此位置,存水弯的水干涸是不可避免的,导致下水道废气的反流。
所以普通卫生间一定要注意地漏的设置位置,尽量将洗水盆接至地漏,保持存水弯的长期有水状态。
当然有条件的卫生间要做成干湿分离。

△干湿分离式卫生间
最优秀的做法是三分离,甚至是四分离卫生间。

△三分离式卫生间
四式分离卫生间就是将洗面台、马桶、浴室以及洗衣区四个功能完全分离,形成4个区域。一般在国内,这几项都是设计在同一个房间的,统称为卫生间卫生淋浴室之类的。
3、玄关要完整空间
完整的玄关将成为必需品,再小的户型也愿意形成相对完整的换鞋、脱外衣程序,防止室外的病菌对住宅内部的干扰。

△玄关
而较大面积户型将会考虑双流线的入户方式,扩大玄关面积。

△双流线玄关
而有的玄关如果能提供小型洗手设施就更会成为亮点。

△入户玄关设置洗手台
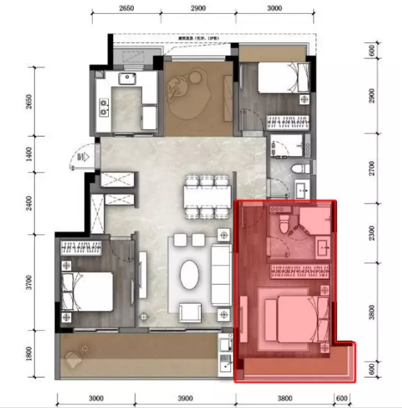
4、主卧室要自成系统
尽量将主卧室做成带独立卫生间,方便家庭内部对发热人员进行有效隔离。

△主卧室带独立卫生间
同时主卧室本身如果能够进行有效地自然通风将会受到欢迎。

△主卧套房且可以独立通风
5、独立电梯厅
可以预见,多层、小高层住宅的独立电梯厅将会受到强烈追捧。

△独立电梯厅户型1

△独立电梯厅户型2
甚至在高层户型中,较大面积户型也会有意去做成独立电梯厅▽▽

△高层独立电梯厅
6、全新生活方式
① 客厅逐渐成为多功能厅
客厅的布局在新冠疫情期间有了更多的变化,客厅看电视的需求在逐渐退化,而在线的交互式活动在逐渐增加。
鉴于此,客厅的布局和设备配置将会引起重大变化。
② 次卧变身为直播间
疫情期间,有一个职业随之再火一把,它便是直播。
如此一来,次卧室会产生大量的在线直播需求,所以在次卧室设计时,可以考虑除了基本的睡眠空间外,还有一个合适直播的空间。
③ 儿童房考虑大屏幕显示设备
儿童房需要考虑远程教学的需求,最理想的状态是摆脱手机或平板电脑模式,以学习台+中远距离的投影显示为最佳。

△儿童房设置
小结:
目前,深悦君能想到的户型的改变,暂时只有这么多,以后想起来再补。
之前孙宏斌等开发商口口声声美好生活、诗与远方,并不是随口说说。
人们追求的东西,的确会随着时代的滚滚向前而随之进化,从物质需求到精神需求,真的是一个必然的趋势。
而这次的肺炎,在不经意间,隐隐成为一个助推器,将这个趋势一下子拉近了很多很多,过后,越往后,人们对于居住体验和细节就愈发看重。
无论如何,希望希望我们的生活会越来越美好。
来源深悦君
编辑者:阿宁
分享到: