
保利海上五月花本次开盘推出的二期E区新品,建筑面积约108平—126平精装房源,以下是房源信息公示,将分为五大板块,篇幅较长,请耐心阅读~
综合信息图
E区1#楼1层平面图

E区1#楼2层平面图

E区1#楼3层平面图

E区1#楼4—26层平面图

E区2#楼1层平面图

E区2#楼2层平面图

E区2#楼3层平面图

E区2#楼4-26层平面图

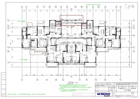
E区3#楼1层平面图

E区3#楼2层平面图

E区3#楼3层、6—23层、25层平面图

E区3#楼4层、24层平面图

E区3#楼5层平面图

E区3#楼26层平面图

E区3#楼27层平面图

E区4#楼1层平面图

E区4#楼2层平面图

E区4#楼3至27层平面图
综合信息表
E1#、2#楼房号综合信息表

E3#楼房号综合信息表

E4#楼房号综合信息表

预测分层图
E1#楼1层

E1#楼2—26层

E2#楼1层

E2#楼2—26层

E3#楼1层

E3#楼2—27层

E4#楼1层

E4#楼2-27层

项目不利因素

温馨提示
1、以上仅为规划展示,具体信息以实际交付为准。
2、买受人同意出卖人取得建设工程质量监督管理部门颁发的该商品房所在楼宇的工程竣工验收备案证明,即表明该房屋符合本合同约定的交房条件。
3、因上传受限,图片未达高清,若对房源信息有疑问请至襄阳市保利海上五月花营销中心找专业置业顾问进行解释说明。





来源:襄阳保利海上五月花
编辑者:若梦
分享到: