
汉江梦1958·御府3号楼毛坯样板房现已开放,目前开放的有91.55㎡和131.21㎡四房两厅两卫两个户型。
户型品鉴
91.55㎡小三室户型

先从91.55㎡户型图右上角的门口进来,映入眼帘的是餐厅、客厅一体的正厅,直逼阳台。阳台凸出于楼栋外立面,凸出部分三面都是窗户,采光性和观景效果极佳。往里面走是厨房、书房、公共卫生间,两间卧室都带有飘窗。整个户型设计简约而温馨,适于三口之家居住。

(91.55㎡毛坯样板间实景图)
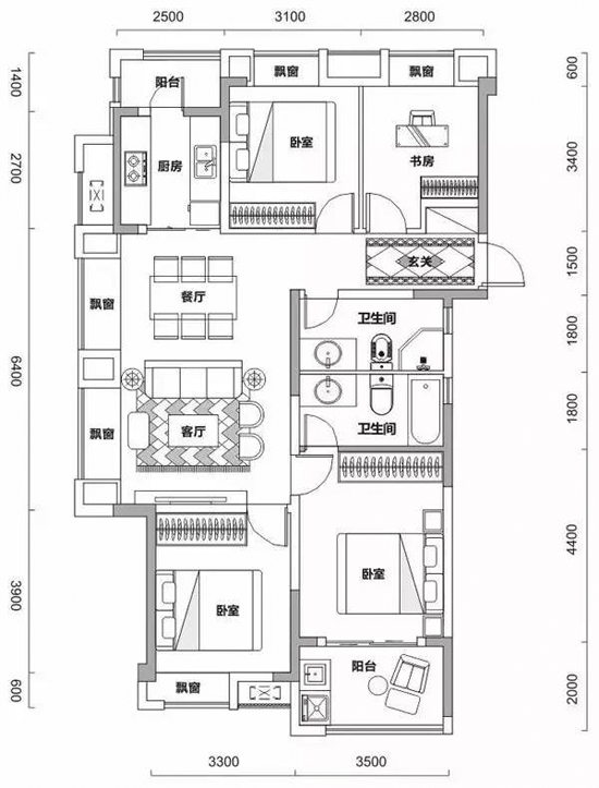
131.21㎡四室两厅

131.21㎡户型入户门的位置设计了玄关,私密性良好。在进门右手边是书房,紧接着是儿童房。再过来就是餐厨一体化的设计,餐厅与客厅也是衣襟相连,宴客、会客都十分方便。而且,形成了超长的6.4米横厅,横厅以整面窗体与户外相连,呈现出270°广角视野,观景效果极佳。最里面是主卧和客卧,私密性非常好,可以保证安静的休息和睡眠。主卧还带有阳台,通风采光效果俱佳。我们可以看出整个户型被飘窗和阳台包裹,具备通风、采光、隔热、降噪多种功能。而且,各功能分区布局合理,动静皆宜。适合三口之家、五口之家居住。

(131.21㎡毛坯样板间实景图)
看完这两大户型,你的心中是否泛起涟漪?按捺不住自己的内心,想去现场亲身体验一下这样梦寐以求的“宅之基地”呢?

2017年御府新品即将璀璨登场
敬请期待
详情请咨询营销中心
0710-3178888/9999
编辑者:卷毛
分享到: